IMG_5452.jpg

Immortals

 Immortals

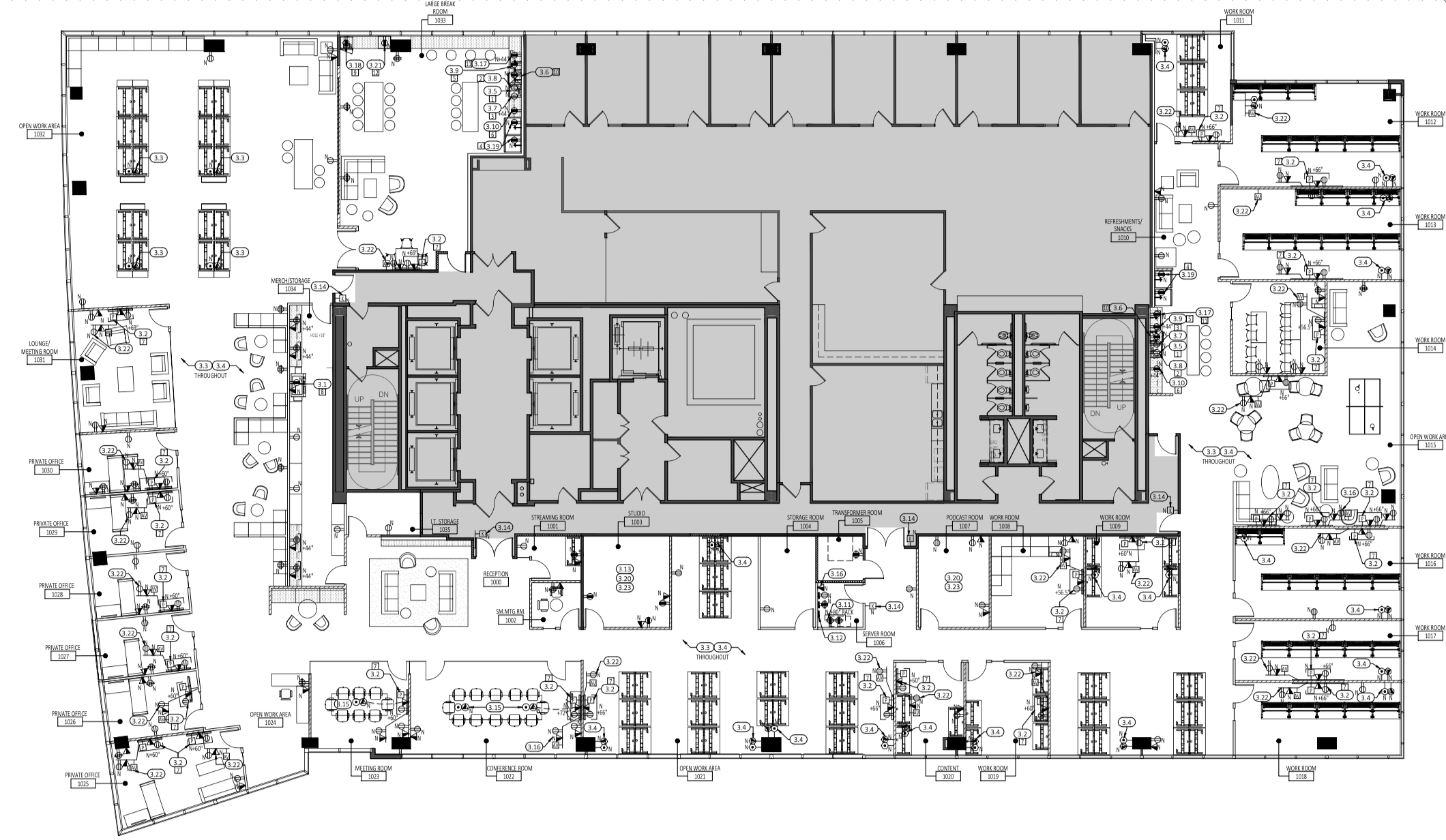
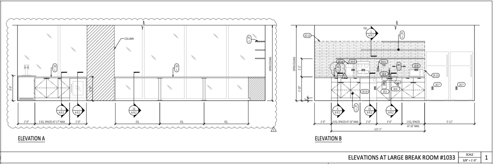
This E-sports gaming company requested a unique space with dark finishes to go with their personal style, while still being highly functional. This tenant required some atypical features due to their program, such as black out shades for gaming rooms, a soundproof podcast room, a studio with pipe ceiling grid, and a brand sponsored lounge area. My responsibilities for this project included space planning, finish selections, design development, construction documentation, plan check coordination, and construction administration. I worked closely with the client to develop finish schemes and presented various ideas to make their vision come to life. I also had to adhere to a separate set of design guidelines of a brand sponsorship with American Express. The entrance featured a creative solution to displaying the company's physical awards in which I oversaw the process, from the schematic to construction phase.

Site: Los Angeles, CA

Size: 15,000 sqft.

Firm: SAA

 
 

Construction Drawings

 

Map